
TS-170
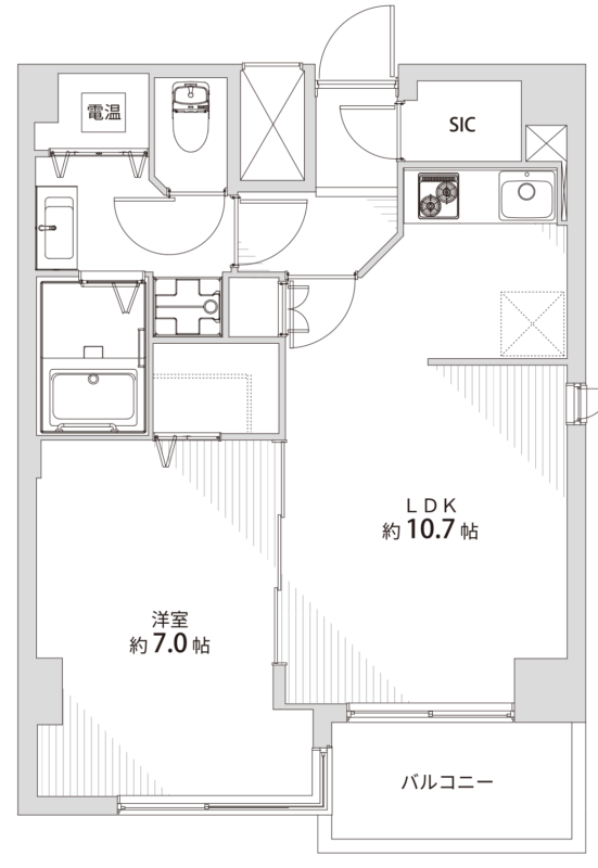
池袋 44.65㎡ 1LDK 4,580万円(南向き、新耐震基準)
お買い物・食事・アクセス暮らしが快適になる要素が詰まったエリア『池袋』 フルリフォームされた室内が新築気分♪ 是非家賃と比べてみてはいかがですか?
4,580万円(税込)
- 南向き
- 新耐震基準
アクセス |
『池袋』駅徒歩8分 |
価格 |
4,580万円 |
|---|---|---|---|
専有面積 |
44.65㎡ |
間取り |
1LDK |
バルコニー |
3.85㎡ |
構造・規模 |
鉄筋鉄骨コンクリート造12階建/11階部分 |
階層 |
11階 |
総戸数 |
78戸 |
管理費 |
月額13,440円 |
修繕積立金 |
月額10,080円 |
築年月 |
昭和57年11月 |
改装年月 |
|
その他 |
|||



