
NA-172
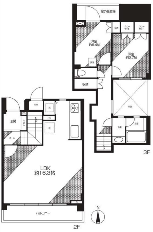
新江古田 77.05㎡ 2LDK 5,580万円(メゾネット、南向き、フルリフォーム、天窓)
オートロックの付いた戸建て!?上下で住み分けの出来るマンション!? イイトコ取りを叶える新耐震基準のメゾネットマンション♪ 陽当りの良いゆとりの2LDKです
5,580万円(税込)
- 駅5分圏内
- メゾネット
- フルリフォーム
- 南向き
- 新耐震基準
- 複数沿線利用可
アクセス |
『新江古田』駅徒歩3分、『江古田』駅徒歩10分 |
価格 |
5,580万円 |
|---|---|---|---|
専有面積 |
77.05㎡ |
間取り |
2LDK |
バルコニー |
6.24㎡ |
構造・規模 |
鉄筋コンクリート造地下1階付3階建/2-3階部分 |
階層 |
2-3階 |
総戸数 |
18戸 |
管理費 |
月額14,180円 |
修繕積立金 |
月額16,550円 |
築年月 |
平成11年5月 |
改装年月 |
|
その他 |
|||




