
NA-164
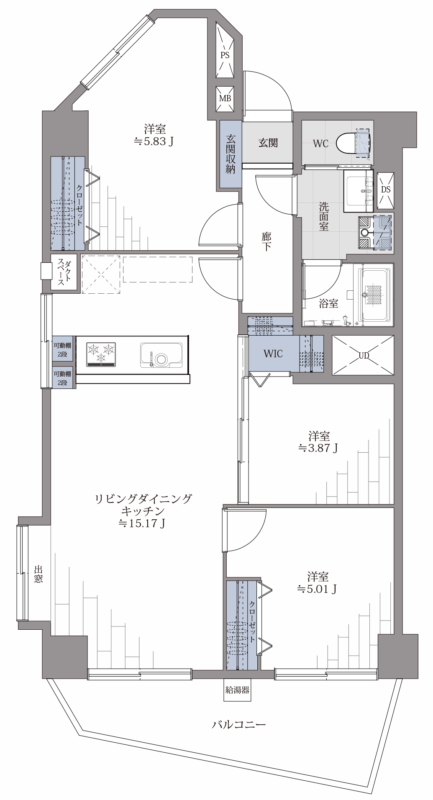
中野 67.49㎡ 3LDK 6,999万円(大規模マンション、三方角部屋、フルリフォーム、浴室乾燥機)
ペットと暮らせるファミリータイプのマンションが『中野』に登場! ヴィンテージマンションの雰囲気が魅力的 毎日探索したくなっちゃうエリアが楽しい!
6,999万円(税込)
- ペット可
- 浴室換気乾燥機
- 駅5分圏内
- 大規模マンション
- フルリフォーム
- 複数沿線利用可
- 三方角部屋
アクセス |
『中野』駅徒歩5分、『新中野』駅徒歩9分、『東高円寺』駅徒歩13分 |
価格 |
6,999万円 |
|---|---|---|---|
専有面積 |
67.49㎡ |
間取り |
3LDK |
バルコニー |
6.35m² |
構造・規模 |
鉄筋鉄骨コンクリート造12階建/6階部分 |
階層 |
6階 |
総戸数 |
100戸 |
管理費 |
月額13,900円 |
修繕積立金 |
月額13,900円 |
築年月 |
昭和47年3月 |
改装年月 |
|
その他 |
|||





